APPARTEMENTS
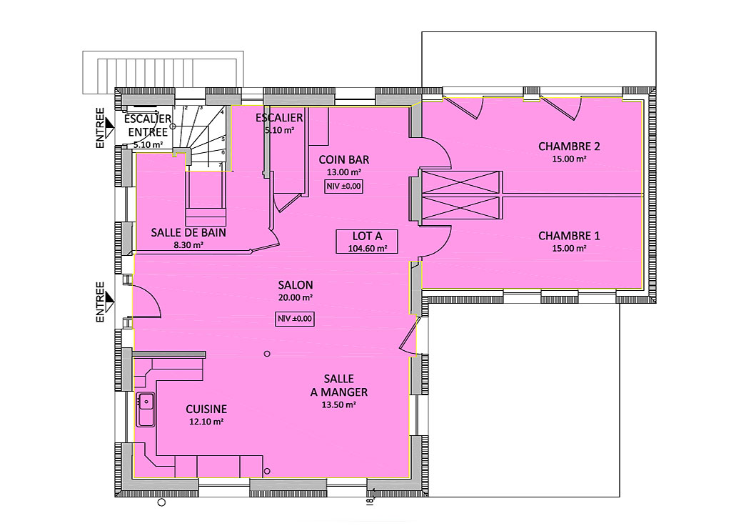
LOT A - REZ - 130M2
- Surface PPE : 130m2
- Surface habitable : 105m2
- 2 terrasses : 10+28 = 38m2
- Jardin privatif : 100m2
- Cave : 16m2
- 2 places de parc extérieures
- 1 chambre de 17.5m2
- 1 chambre de 12m2
- Séjour-cuisine 60m2
- Orientation 360°
- Baignoire balnéo
- Grande armoire murale
- Cuisine entièrement équipée avec plan de travail en quartz



















